Appart T3 2ch balcon et parking en S/S Vertou Bourg

Location

G/36/24


TROP TARD, LOGEMENT LOUÉ !


- Plein BOURG de VERTOU - rue Sèvre et Maine

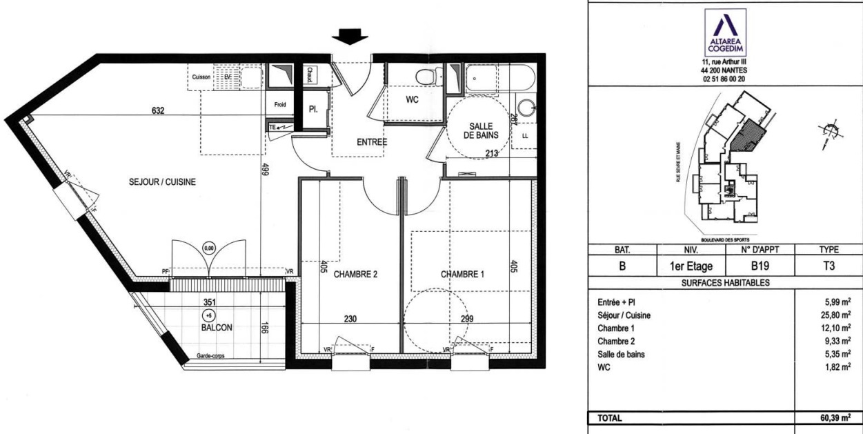
L'agence VIMMO vous propose ce bel appartement T3 de 60m2 édifié en 2017, commerces à pied, proche des bords de Sèvre et transports en commun à 100m (Bus ligne 28, 42, 60 et 97).

Logement situé au 1er étage avec grand balcon, place de parking privative sécurisée et disposant de :
> un salon séjour avec espace cuisine
> 2 chambres
> un WC séparé
> une salle de bains (avec baignoire)
> 1 place de stationnement privative en sous-sol + stationnements publiques dans la rue autour de l'immeuble.
> interphone avec porte sécurisée et local à vélos.

Loyer hors charges de 679,39 €/mois ; Loyer avec charges comprises (entretien parties communes & TEOM) de 727€/mois, reste ensuite à votre charge les consommations en électricité, gaz et éventuellement internet (fibre optique disponible).

Pour vos renseignements et visites, contactez Victor GAUDIN au O6 85 14 99 07.

Loyer CC* / mois : 727,00 €

Descriptif du bien

Code postal / ville 44120 Vertou
Surface habitable (m²) 60,39 m²
Nombre de chambre(s) 1 2
Nombre de pièces 3
Nb de salle de bains 1
Cuisine Semi - equipee
Type de cuisine Kitchenette
Mode de chauffage ville
Type de chauffage chaudiere
Format de chauffage individuel
Parking Oui
Piscine Non
Balcon Oui
Terrasse Non
Coup de coeur Non
Bien meublé Non
Loyer CC* / mois 727 €
Honoraires TTC charge locataire 694.5 €
Dont état des lieux
Charges locatives (Previsionnelles mensuel les avec regularisation annuelle) 47.61 €

En poursuivant votre navigation sur ce site, vous acceptez le dépôt de cookies tiers destinés à vous proposer des contenus de plateformes sociales et réaliser des statistiques de visites.

En savoir plus