Terrain 280m2 premier rideau

Vente

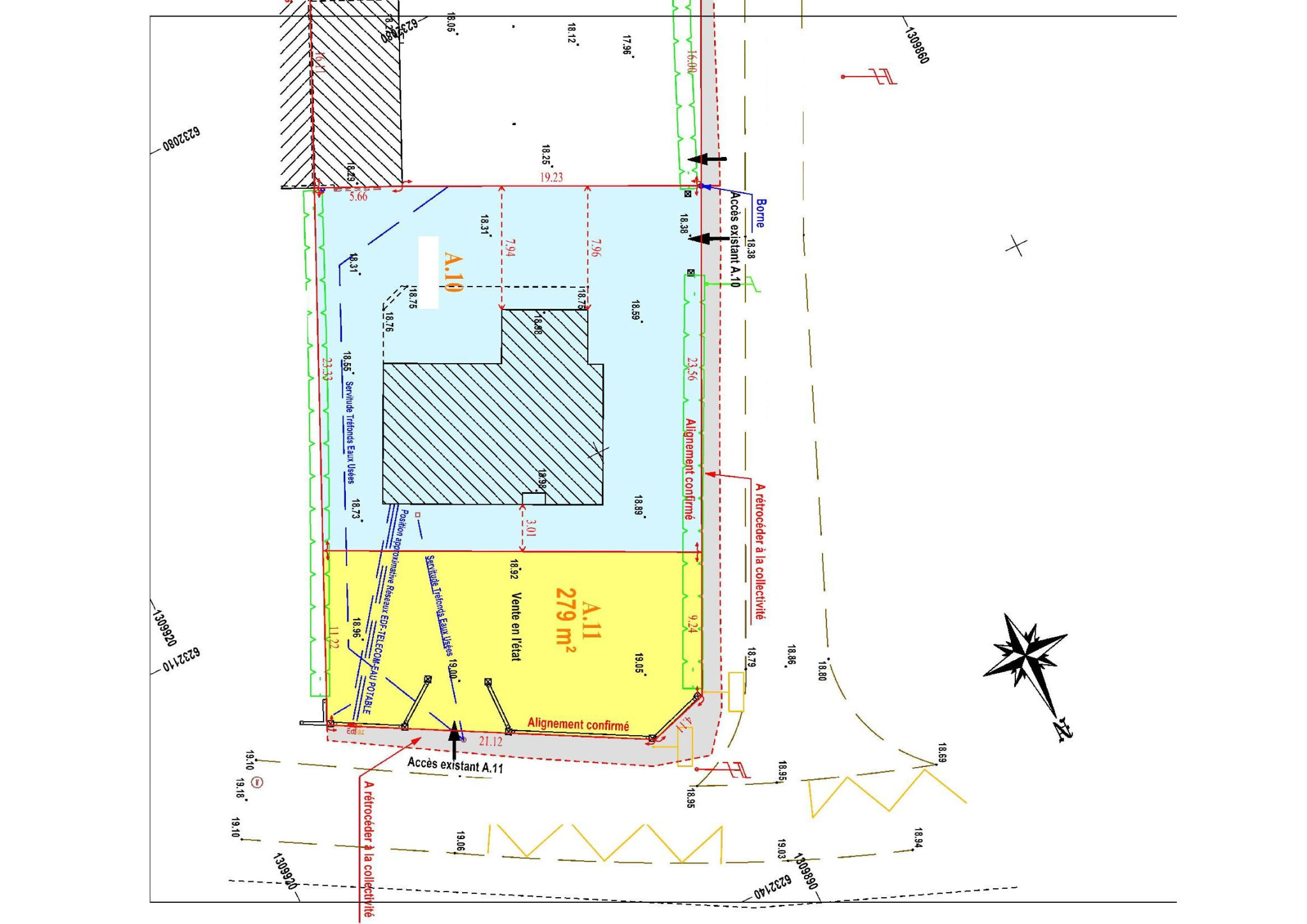
C-434-26

Découvrez ce terrain en premier rideau d'une surface d'environ 280m2 (en jaune sur le plan), idéalement situé à seulement 15 minutes de la plage.
Ce bien est desservi par les réseaux, ce qui facilite vos futurs projets de construction.
75% d'emprise au sol possible, zone Ub du PLU. Retrait de 5m de la route.
Profitez d'un emplacement privilégié pour réaliser la maison de vos rêves ou un investissement locatif, dans un environnement agréable et recherché.
TERRAIN DISPONIBLE AVEC NOTRE PARTENAIRE CONSTRUCTEUR
Prix HAI : 86 000€.

Vincent LE FLOCH ; Agence VIMMO, Agent Commercial (adhérent FNAIM) à Vertou, Professionnel inscrit au RSAC Nantes 2025AT00036

Les informations sur les risques auxquels ce bien est exposé sont disponibles sur le site Géorisques : www.georisques.gouv.fr Contactez-moi au o6 95 93 58 38 pour plus de renseignements et programmer une éventuelle visite.
Cette annonce vous est proposée par LE FLOCH Vincent - EI - NoRSAC: 440494722, Enregistré à de NANTES

Prix de vente : 86 000,00 €

Descriptif du bien

Code postal / ville 44730 St michel chef chef
Surface habitable (m²) 280 m²
surface terrain 280
Nombre de pièces 0
Parking Non
Piscine Non
Balcon Non
Terrasse Non
Coup de coeur Non
Bien meublé Non
Bien concerné par le DPE Non
DPE vierge Non
Propriété soumise à un plan de sauvegarde Non
Terrain constructible Non
Prix de vente 86000 €

En poursuivant votre navigation sur ce site, vous acceptez le dépôt de cookies tiers destinés à vous proposer des contenus de plateformes sociales et réaliser des statistiques de visites.

En savoir plus